
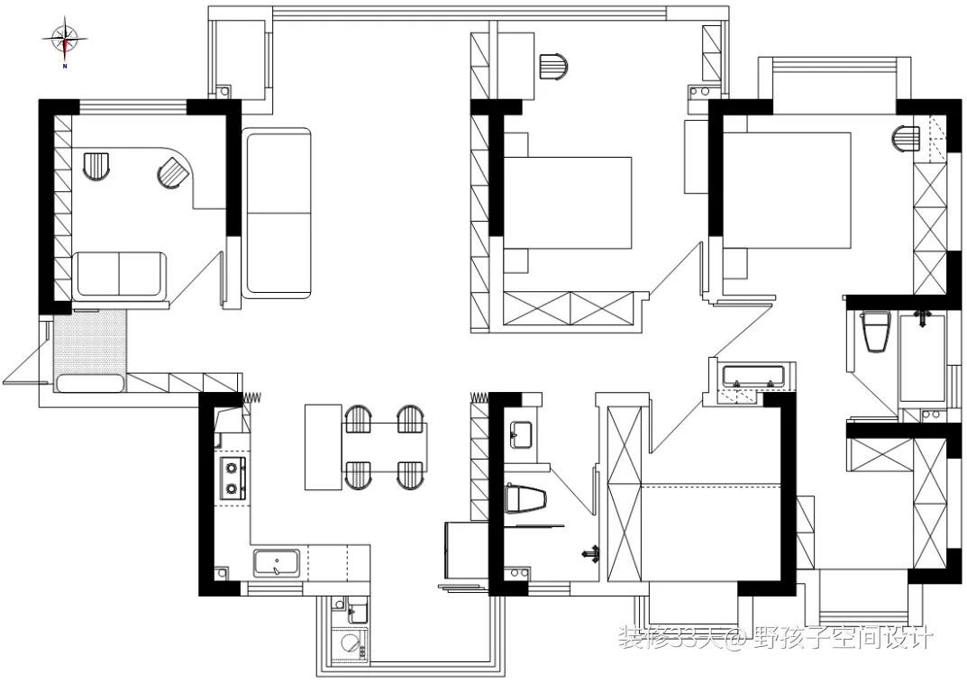
本案使用面积121平,坐标长沙,于2022年5月完工。户型为五室两厅,常住人口不多,设计更注重空间整合:将厨房与餐厅打通,并将一间小次卧并入主卧,形成舒适套间,提升整体居住品质。
松爷留言:厨房无论是做开放式还是封闭式都会有自己的优缺点,那最好的办法就是又能开又能合。
这种「餐厨一体」的模式,我感觉是众多厨房模式中综合表现最均衡的一种,而且这个案例中的PVC折叠门又是各种推拉门和折叠门中相对成本最划算的。

▲ 平面结构图

▲ 平面布置图

▲ 玄关铺设花砖界定落尘区。Tiffany蓝色换鞋凳以洞洞板为背景,搭配一面不规则墙镜,方便出门前整理仪容。灰色鞋帽柜中部留空,便于随手置物

▲ 洞洞板巧妙隐藏了配电箱,兼顾美观与实用

▲ 客厅通铺人字拼木色地板,顶面采用无主灯设计。阳台一分为二,分别并入客厅与儿童房,引入更多自然光

▲ 奶油白色主沙发搭配云朵造型茶几,浅灰色墙面装饰克莱因蓝简约画作,橙、绿色彩点缀其间,提升空间质感与活力

▲ 电视背景墙打造整面收纳系统。灰色柜体与抽屉结合玻璃展示柜,中间以暗黑色长城板作为电视背景,层次分明

▲ 新风主机被巧妙隐藏在壁柜内,保持视觉整洁

▲ 从客厅望向餐厨区,折叠PVC拉门可根据需要灵活开合,划分空间

▲ 餐厅选用白色餐桌,一侧紧贴岛台,另一侧留出充足过道。灰色餐边柜预留滑动插座,方便使用小厨电,线性灯光增添氛围

▲ 不同款式的餐椅与餐桌、柜体色彩呼应,吊灯点缀增添层次,共同营造温馨的就餐氛围

▲ 厨房打通后呈开放式布局。L型错落操作台结合厨电高柜,岛台既分隔餐厨空间,也作为操作台面的有效补充

▲ 客卫实现干湿分离。牛油果绿色瓷砖背景在镜灯映照下更显清新明亮

▲ 儿童房与阳台连通,为孩子拓展出更多活动空间。蓝白分色墙面搭配屋型落地床,复古绿色摇椅兼具趣味与实用性

▲ 次卧采用地台床设计,床尾打造整墙收纳柜。分色床头背景选用温暖治愈的色调,靠窗设置写字台,让空间功能更加多元

▲ 小次卧并入主卧改为套间。主卧入口以一幅色彩画作端景,花砖与木地板区分出不同功能区域

▲ 主卫干湿分离,定制台盆搭配墙排龙头,下方悬空便于清洁打理

▲ 主卧以温暖治愈为基调,明亮舒适为前提。飘窗打造成休闲一角,床尾区域既是收纳区,也兼作梳妆台

▲ 藕粉色墙面围合出床头安全感,浅咖色绒面高背床搭配两款不同床头柜。艺术画与复古绿色吊线灯成为空间装饰亮点

▲ 从主卧睡眠区经过两处拱形垭口,即可到达由小卧室改造的衣帽间,动线中经过主卫干区

▲ 主卫采用分色铺贴,色彩从地面延伸至半墙,以金属扣条勾勒腰线。浴缸结合淋浴设计,提升了洗浴的舒适体验
倍顺网提示:文章来自网络,不代表本站观点。