
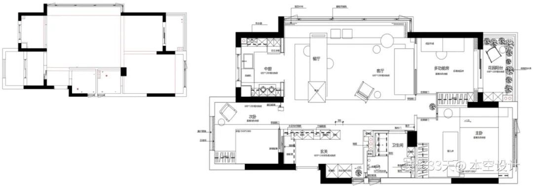
本案业主希望保留三房的格局,同时考虑到未来家庭成员的增加,儿童房可以暂时作为书房或备用衣帽间使用。此外,业主追求空间的通透和开阔感。基于这些需求,设计师对原始的朝西南北走向的三房两卫户型进行了彻底的改造。

▲ 平面图

▲ 入户端景巧构空心砖+柜体一体化设计,既缓冲入户视线,又借镂空砖引入自然光线,实用与美观兼得

▲ 空心砖特写

▲ 入户左手边打造整面洞洞板,错落收纳让日常小物整洁有序,下方隔板化身换鞋凳

▲ 玄关四周做满了收纳,高柜内还隐藏了洗烘套装,入户动线利落又舒心

▲ 从玄关望向客厅,打破传统电视墙的布局,以懒人沙发搭配小边几打造随性休闲区,让居家日常满是松弛与惬意

▲ 过道右侧的留白墙面隐藏了卫生间入口,一旁嵌入镜面元素具有延伸视觉的效果

▲ 餐厅做餐岛一体设计,兼顾备餐与就餐功能;餐桌自然延伸至飘窗之上,巧借飘窗空间拓展用餐区

▲ 厨房U型布局,整体以白色为主调,极简干净又清爽,定制高低台契合人体工程学

▲ 书房以简约为底,弧形顶面与墙面叠级造型相融相衬,层次错落间勾勒立体质感

▲ 主卧定制地台床,木饰面半高护墙结合黑色墙面,营造出静谧又温馨的氛围,连续的弧形顶面设计,让空间秩序感拉满

▲ 整排层板落位床尾,集梳妆区、书桌、置物区功能于一身

▲ 侧面还有一组置顶大衣柜
倍顺网提示:文章来自网络,不代表本站观点。